Spodní patro stavby z 80. let předělali odborníci ze studia ArchArt na moderní a funkční obytný prostor. Zvětšený obývák doplnil i náš sedací nábytek.
Vždy rádi vidíme, když naše výrobky využívají ve svých realizacích i architekti či designéři. Prostřednictvím našeho blogu vám tedy dnes představíme jednu rekonstrukci interiéru, která vyšla z dílny architektonického a projekčního studia ArchArt z Dubnice na Váhom. Díky jejich kreativnímu zásahu vznikl na přízemí staršího rodinného domu moderní obytný prostor.
Původní stav byl už demodé
Velký obývák, otevřené a propojené prostory, to jsou požadavky na moderní interiér. Přízemí stavby z 80. let však současnému standardu vůbec neodpovídalo. I mladý muž, který v domě bydlí, viděl své bydlení jinak. „Požadavkem klienta bylo dosáhnout moderního a komfortního prostoru, kde se bude cítit příjemně se svou rodinou a přáteli,“ říká Radoslav Dzurko, jednatel společnosti ArtArch.

Původní kuchyně nebyla ani moderní, ani funkční. Značnou část prostoru zabírala zbytečně velká spíž. Zdroj: archiv ArtArch
V kuchyni byla přítomna stará kuchyňská linka, která už měla dobu své slávy dávno za sebou, a obýváku zas dominovala mohutná sedací souprava a členitá obývací stěna. Tento nábytek celý prostor ještě zmenšoval.

Původní obývák byl malý a nábytek v něm zastaralý. Zdroj: archiv ArchArt
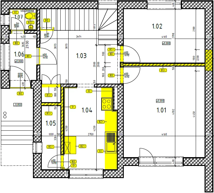
Problém však nebyl jen ve starém nábytku, architekti byli nuceni i bourat. „Na přízemí jsme museli odstranit jednu příčku, abychom dosáhli velkého open space pro obývák. V kuchyni jsme zas zmenšili zbytečně velkou a dosud nevyužívanou spíž. Zvětšil se tím prostor kuchyně,“ popisuje důvody pro bourací práce Radoslav Dzurko.

Původní stav přízemí domu z 80. let. Žlutou barvou je naznačený rozsah bouracích prací. Zdroj: archiv ArchArt

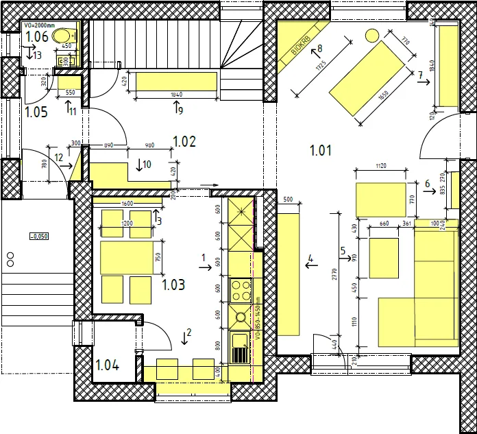
Současný stav přízemí po interiérových úpravách ArchArt. Spíž se radikálně zmenšila a obývák zvětšil. Zdroj: archiv ArchArt
Jednoduché a čisté linie dominují celé přestavbě
Díky zmenšení spíže vzniklo v kuchyni větší místo pro jídelní kout, kde si v současnosti pohodlně sednou čtyři lidé. Starou kuchyňskou linku nahradil jednoduchý nábytek s barevným podsvícením a moderními vestavěnými spotřebičemi.

Zmenšením spíže vznikl prostor pro plnohodnotný jídelní kout, který původně absentoval. Zdroj. archiv ArchArt

Zajímavým designovým prvkem kuchyňské linky je barevné osvícení pracovní desky.
Díky zbourané stěně se radikálně zvětšil i obývák a architekti tak mohli splnit představy klienta. „Požadavkem bylo mít prostor na čtení knih, který jsme vytvořili při biokrbu použitím lenošky Miami. Chtěl mít i velký prostor s obrovskou televizí, na kterou se lze pohodlně dívat z gauče,“ vysvětluje Dzurko.

Čtecí koutek s lenoškou Miami byl vytvořen na výslovné přání klienta. Zdroj: archiv ArchArt
Aby umocnili pocit jednoduchosti a čistoty celého prostoru zvolili architekti typ sedací soupravy Paris, která je elegantní a úsporná. Jako potahový materiál vybrali velmi jemnou tkanou látku Alex.

Rohová sedačka Paris s taburetem poskytují dostatek míst k sezení a přesto nepůsobí zbytečně mohutně. Zdroj: archiv ArchArt

Požadavkem klienta bylo mít velkou televizi, na kterou se lze koukat z pohodlné pohovky. Zdroj: archiv ArchArt
Na jednoduché a čisté linie byl kladen důraz během celé rekonstrukce. Úzce s tím souviselo i propojení celého podlaží. Úprav se tak, samozřejmě, dočkala i rozlehlá předsíň a malá toaleta. Celé patro sjednotila stejná podlaha s hnědá barva, která vévodí celí přestavbě.

Obývák, kuchyn i předsíň sjednotila stejná podlaha. Zdroj: archiv ArchArt

Propojení prostoru se umocnilo posuvnými dveřmi do kuchyně a zrušením dveří do obýváku. Zdroj: archiv ArchArt

Moderního faceliftu se dočkala i malá toaleta na přízemí. Zdroj: archiv ArchArt
Váš PHASE Tým
Kontakty na architektonickou a projekční kancelář ArchArt:
Telefon: 0949 410 360
E-mail: info@archart.sk
Adresa: Partizánska 1282/16, 018 41 Dubnica nad Váhom